Voltar
Fânzeres e São Pedro da Cova



















Descrição
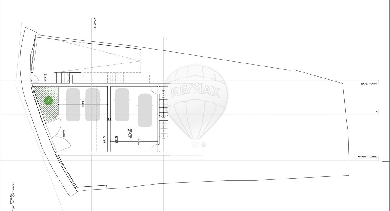
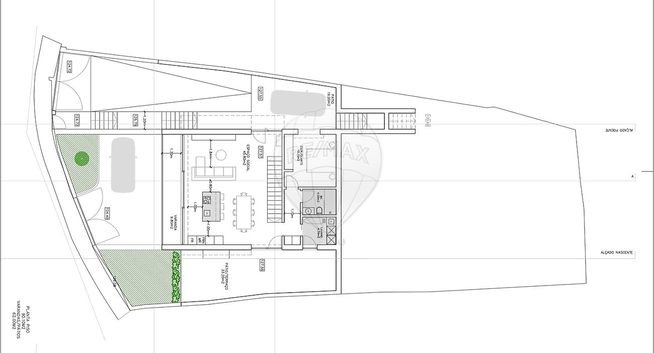
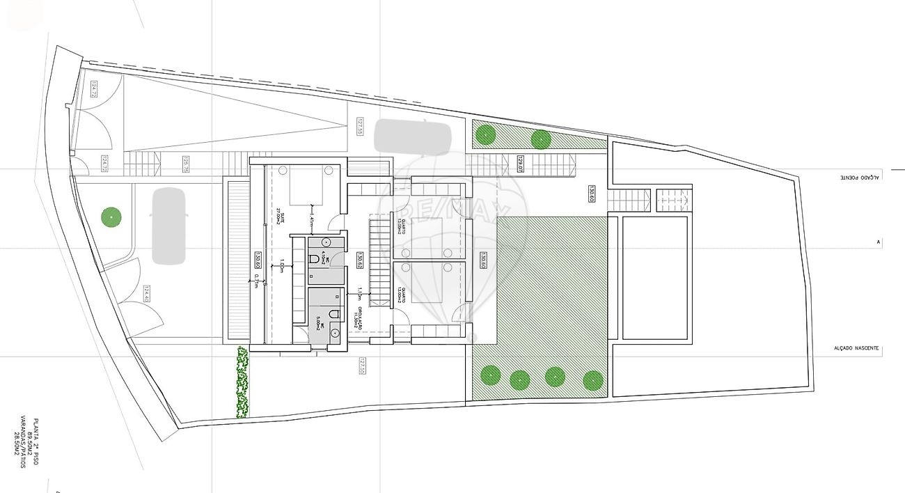
Descubra este fantástico terreno urbano com 570m², situado numa zona tranquila e em crescimento, na Rua do Pinheiro Manso, São Pedro da Cova, concelho de Gondomar. Com projeto arquitetónico moderno já aprovado, esta é uma oportunidade rara para construir a casa dos seus sonhos sem atrasos burocráticos.
O projeto aprovado contempla uma moradia unifamiliar de traços minimalistas, com linhas elegantes e amplas superfícies envidraçadas, maximizando a entrada de luz natural e oferecendo vistas deslumbrantes sobre a envolvente.
Entre os destaques do projeto:
Este terreno beneficia de uma localização estratégica, conjugando tranquilidade com proximidade a todo o tipo de serviços e acessos:
Aproveite esta excelente oportunidade para viver com qualidade numa zona em franco crescimento.
Para mais informações, agendamento de visita ao terreno ou consulta do projeto detalhado, entre em contacto.
Detalhes
--
--
570
--
--
--
--
0
--
--
Detalhes Energéticos
Eficiência Energética

Contactar Agência

RE/MAX Top
(Chamada para rede móvel nacional)