Voltar
Gestaçô
































Descrição
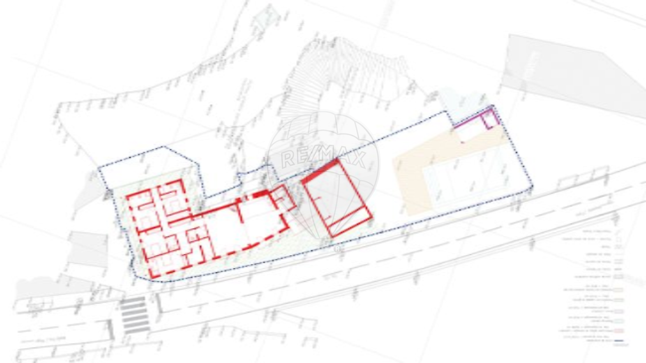
Moradia T4 com Projeto Aprovado – Excelente Oportunidade de Investimento
Moradia T4 com projeto de alteração e reconstrução aprovado, concebido para a criação de 4 suites, cozinha, sala de jantar e sala de estar, oferecendo conforto, funcionalidade e um elevado potencial de valorização.
O projeto contempla ainda garagem com capacidade para 4 viaturas, espaço de lazer com piscina, anexo de apoio, e áreas exteriores pensadas para usufruto em pleno contacto com a natureza.
Beneficia de excelente exposição solar, inserida num ambiente tranquilo e com ótimos acessos, localizada a 15 minutos da cidade de Amarante e a 15 minutos da vila de Baião.
O imóvel dispõe igualmente de espaço destinado a horta e árvores de fruto, ideal para quem valoriza um estilo de vida sustentável e ao ar livre.
Pelas suas características e localização, esta moradia é ideal para habitação própria, casa de férias ou exploração turística, nomeadamente alojamento local ou turismo rural.
Uma oportunidade única para quem procura investir num projeto com grande potencial.
Marque já a sua visita..
Detalhes
--
--
--
--
4
1937
--
4
--
--
Detalhes Energéticos
Eficiência Energética

Contactar Agência

RE/MAX Top
(Chamada para rede móvel nacional)